Boutique Hotel. Fall 2013. William Cannady (professor), Ting Yin (partner). Sketchup, AutoCAD, Illustrator, Photoshop.
This project was part of the “Totalization” studio at Rice School of Architecture, which I completed along with students from Rice’s Jones School of Business, who developed a business case for the project which my team used as a basis of design, including using cost estimation software to fit within budget constraints, and complying with the Le Meridien brand requirements. This was by far the most real-world project I completed in school, and one of the most enjoyable.
Total area (hotel and garage) = 252,510 sf. Total construction cost = $33.6 million (2013 dollars).
The Le Meridien River Oaks hotel in Houston, TX is designed to appeal to the “creative guests” sought by the brand. These guests desire to be “inspired by a new experience”. The center of this experience is the Hub.

The Hub is a space within the hotel which “conveys a creative atmosphere that fosters dialogue and exchange”. It is a quietly busy, refined space in which to relax and enjoy a coffee or a glass of wine while meeting with friends or clients.
The Hub, containing the lobby and bar, has been inserted as part of an iconic form which cuts through the L – shaped mass formed by the guest tower and a podium containing ballroom, restaurant, and parking garage.
The Le Meridien River Oaks occupies a prominent corner location at the junction of the retail-heavy Upper Kirby area and the primarily residential River Oaks neighborhood in Houston.

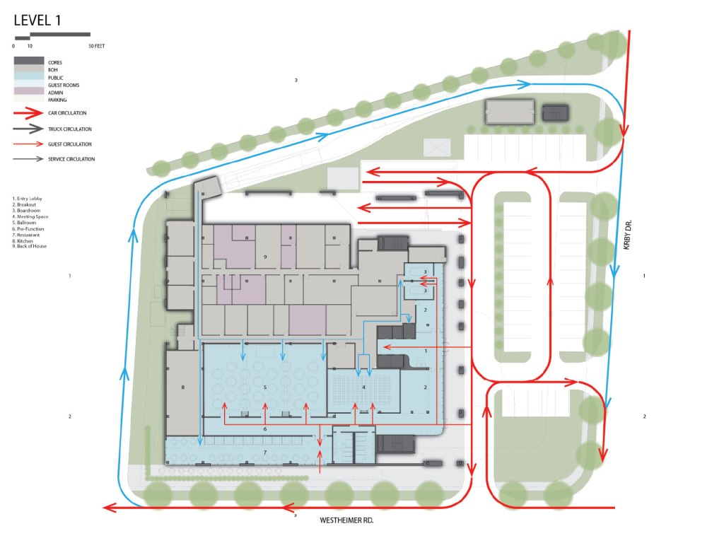
Visitors enter under the Hub, which serves as a porte cochere:

Level 1 contains the entry lobby, restaurant, ballroom, back-of-house spaces and parking garage. Significant setback requirements and a small site posed quite a challenge to all three teams working on the project.

Level 2 contains the bar, lounge, spa and pool deck, as well as the parking garage’s upper level. This is the main level of the hotel and the location of the “Hub”.

Reception on Level 2 greets visitors with a city backdrop:

The Hub revolves around an iconic circular bar, and is the center of creative social activity for the hotel. It is the place to relax after a long flight or to meet a business contact for a casual discussion over drinks.

Outside, visitors relax on the pool deck, enjoying the sun and the outdoor bar:

The project has to negotiate a significant difference in scale between the commercial area to the south and the residential neighborhood to the north. To address this challenge, the tower is oriented with its short side towards the residential neighborhood, and the east and west facades are divided into 2-level strips to make the tower seem shorter than it really is:


Above Level 2, guestrooms are efficiently arranged in a tower:

A typical guest room on the east side gives the guest views of downtown Houston.


Revision
While quite successful, the Le Meridien River Oaks project has two problems, one small, the other large.
The minor problem is that the entry lobby is split between the main entrance on Level 1, and the reception desk on Level 2, with only an elevator to communicate between them. These functions should be combined on Level 1, to avoid guest confusion.
The more significant problem poses challenges for the hotel’s operation. The tower’s east-west orientation was chosen to present a smaller profile to the residential neighborhood to the north, in hopes of appeasing opposition to such a tall building. However, this orientation will cause significant solar heat gain and increase glare, requiring more cooling and decreasing guest satisfaction.
While well-intentioned, attempting to reduce the hotel’s impact on the River Oaks neighborhood to the north is futile, since the smaller profile makes little difference visually or in terms of shading. Rather, the tower should have been oriented north-south, making it easy to shade the guestrooms from glare and excessive solar heat gain.
