Houston Megachurch. Fall 2011. Grant Alford (professor). Rhino, V-Ray, Illustrator, Photoshop.
Informed by a study of Houston’s megachurches, the thesis begins with the observation that the megachurch seeks to attract as many congregants as possible. But gigantism leads to anonymity, and televangelism fails to create a real community. Liturgical diversity means that few potential congregants will be turned away because they don’t like the megachurch’s worship style, but massive auditoria are limited in what liturgies they can support.
The megachurch must embrace many different types of worship space, which have been developed to support a specific form of liturgy and must deploy them at an appropriate scale. Clustering these worship spaces together in one building makes one-stop liturgical shopping possible: park once, choose what you like from the buffet. Clustering also allows all congregations to use the same non-liturgical facilities, making the megachurch into a unified community. Instead of exchanging typological exactitude for utilitarian banality, the megachurch should return to type as a means of reinforcing liturgical function.

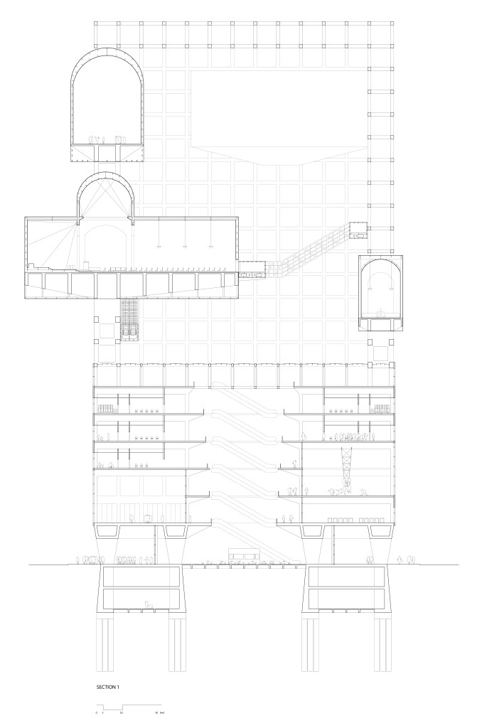
The megachurch is vertically divided into two sections: the Space of Convergence and the Space of Divergence. In the Space of Convergence, seekers and members come together in the atrium and share the welcome program (gym, classrooms, etc.), regardless of liturgical preferences. In the Space of Divergence, worshipers rise into a “typological heaven” to attend their chosen form of worship:

Structurally, this concept is audaciously translated into a gigantic concrete truss supporting worship volumes hundreds of feet above the sidewalk. This is a spectacular, unbelievable building.


Between the massive piers supporting the structure above, the open lobby beckons seekers:

Under the “typological heaven”, seekers move through a neutral space to find their chosen form of worship.

Through a surreal dream of hanging platforms and precarious elevators, worshipers find their way to one of the typologically-specific worship volumes.

Revision
The assumption that form supports liturgical function is correct; however, given the changing preferences of the church’s congregations, more flexibility is necessary. Rather than each worship volume being structurally determined after its form of worship, each should be an empty box, varying in size, capable of being internally reconfigured to support different liturgical functions.
Additionally, while the building’s form is spectacular and a good representation of its diagram, it lacks practicality. Rather, the worship volumes should be embedded into the mass of the building, making them more accessible, and the building’s structure less elaborate and expensive.
More thought should then be given to the design of this solid block. This church is one private institution among many on one grid square in downtown Houston. It expresses an entirely private idea of religion – indeed, multiple private ideas of religion.
Perhaps the best expression for the institution publicly is just blank neutrality, with many enthusiastic interiors.
