House. Spring 2024. Self-directed. Revit, Illustrator, Photoshop.
Exercise is all about fitness for some, but about display for others.
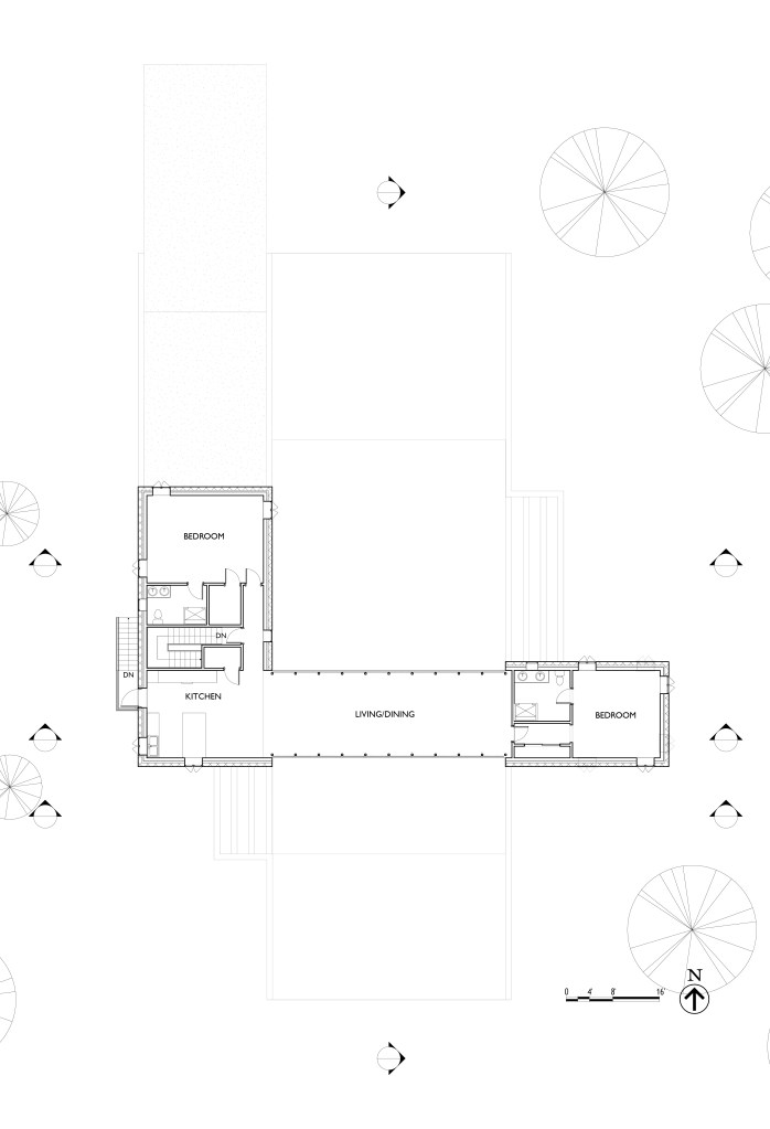
This concept for a 3000-square foot leisure-focused modern residence was an opportunity to practice modeling and rendering in Revit. The house centers on an open bridge structure containing an airy living/dining/exercise space soaring over a sunken lawn.
This bridge is a space of display, an elevated stage on which the house’s inhabitants exhibit their leisure, and from which they look down to survey the world.
The bridge connects two pies; the lawn passes underneath:


The bridge is an open and functionally flexible place of display: from the bridge, the landscape is widely visible, as is the bridge from its surroundings:



Earth ramps at either end of the lawn organically connect the sunken garden with the rest of the property; the bridge creates a sheltered area in the middle of the garden.


The upper level is centered around the Bridge, but also contains the kitchen and two bedrooms.


